Umbau, Aufstockung und Erweiterung Geschäftsstelle
- Beschreibung:
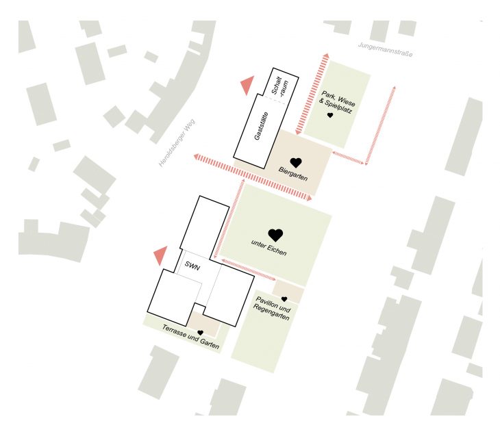
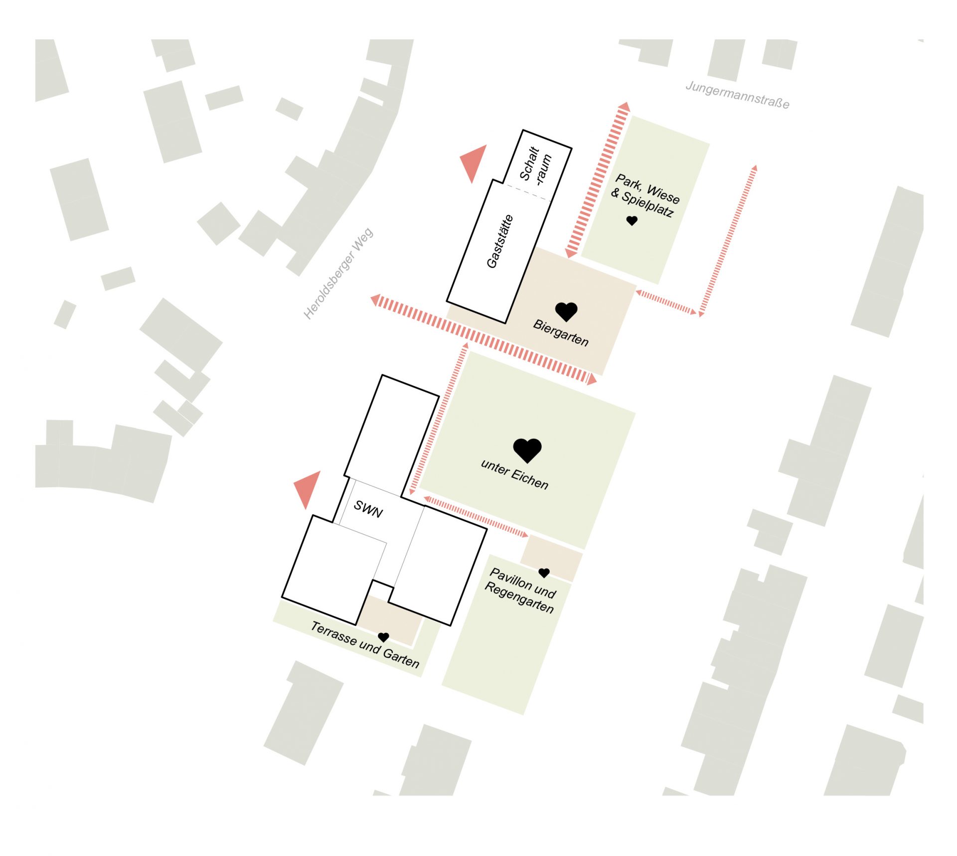
- Hochbaulicher Realisierungswettbewerb mit städtebaulichem Ideenteil 2025 - Umbau, Aufstockung und Erweiterung der Geschäftsstelle des Siedlungswerk Nürnberg am Heroldsberger Weg, Städtebauliche Entwicklung des benachbarten Grundstücks für gefördertes Wohnen, zusammen als ARGE mit NMM [Nicole M. Meier] Landschaftsarchitektur
- Bauherr:
- Siedlungswerk Nürnberg GmbH
- Standort:
- Nürnberg
- Zeitraum:
- 2. Preis - 2025







